TGL- S/顺流型工作原理
压缩机排出的过热状态制冷剂进入冷疑盘管;盘管内的气态制冷剂与盘管外的喷淋水和空气进行热交换,由气态逐渐被冷却冷凝为液态。
引风机的超强风力使喷淋水完全均匀地覆盖在盘管表面,水借风势,热交换效果显著提高。
喷淋水和空气吸收热量后温度升高,部分水由液态变为气态,由蒸发潜热带走大量的热量,热空气中的水被高效脱水器截住并收集到PVC热交换层中。
另一部分水吸收管内介质地热量后温度提升,被布水器二次分配,下落到PVC热交换层中;被横流过的空气冷却,温度降低,进入集水箱中,再由循环水泵进入喷淋系统中,继续循环。水箱内设浮球阀,当水不断地蒸发消耗水箱中的水,水位过低时,浮球阀就自动打开补充冷却水。
TGL- S/蒸发式冷凝器

TGL-S系列蒸发式冷凝器参数表

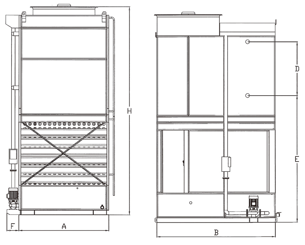
TGL-S系列外形尺寸接管表


